x
P L A T I N U M

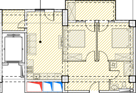
|აპარტამენტი 73.5m²



  • სრული ფართი.: 73.5.3m²
  • საცხოვრებელი.:61 m²
  • აივანი.:12.5 m²

აირჩიე საუკეთესო

მწვანე კარკასი 880$

შავი კარკასი 800$

PlatinuM
ისანი

აირჩიეთ პლატინუმ ისნის თანამედროვე აპარტამენტები.ყველაზე ხელსაყრელ ადგილას. მეტროდან 3 წუთის მანძილზე.მინიმალური წინასწარი შესატანით.უპროცენტო შიდა განვადება მშენებლობის დასრულებამდე.

Platinum ისანი

უპირატესობები

ხარისხიანი მშენებლობა

ხელსაყრელი ფასები

პროფესიონალი გუნდი

რეკრეაციული ზონა